APPARTEMENTEN LIJZIJDE

Hoofdafbeelding
Extra afbeelding
Extra afbeelding
Extra afbeelding
Extra afbeelding

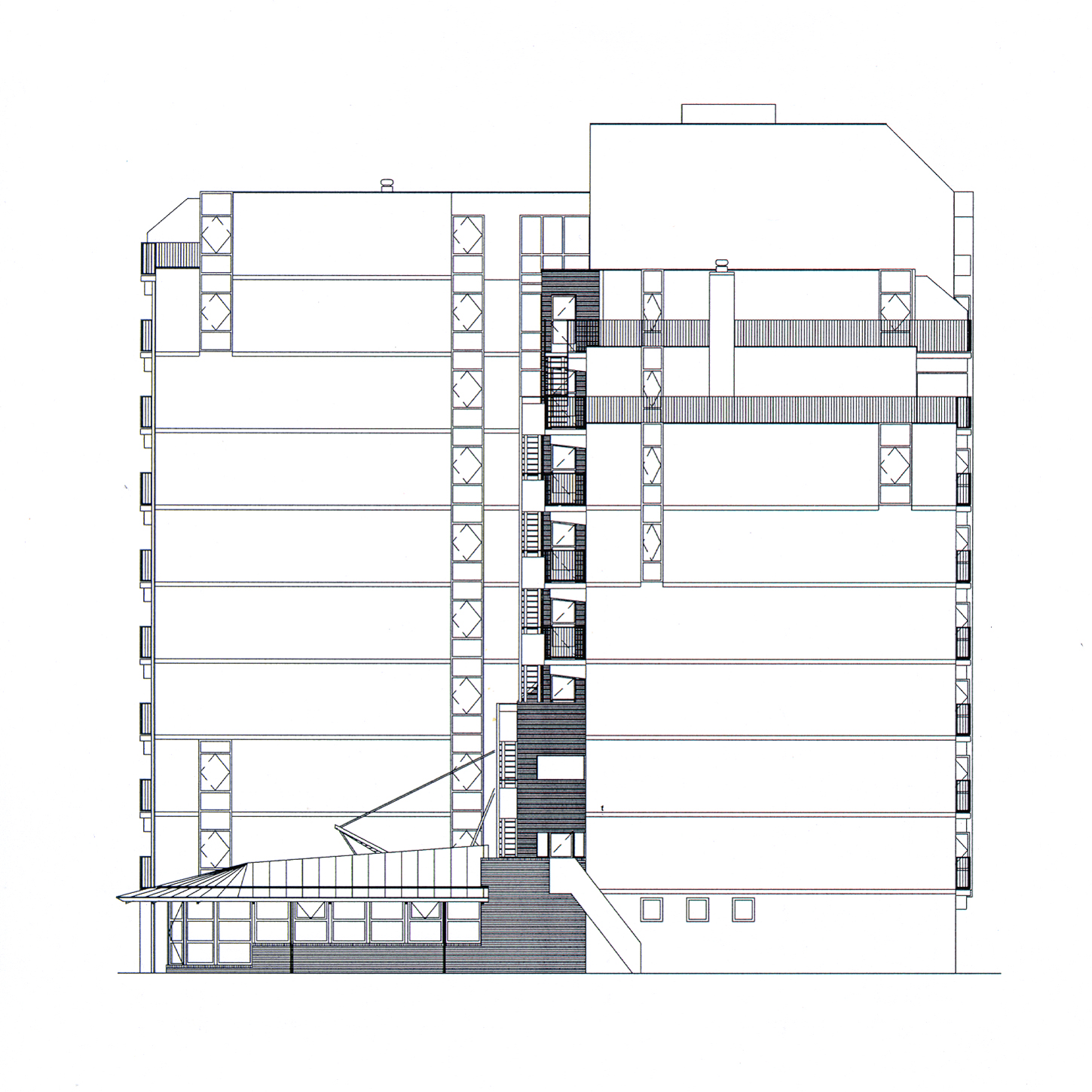
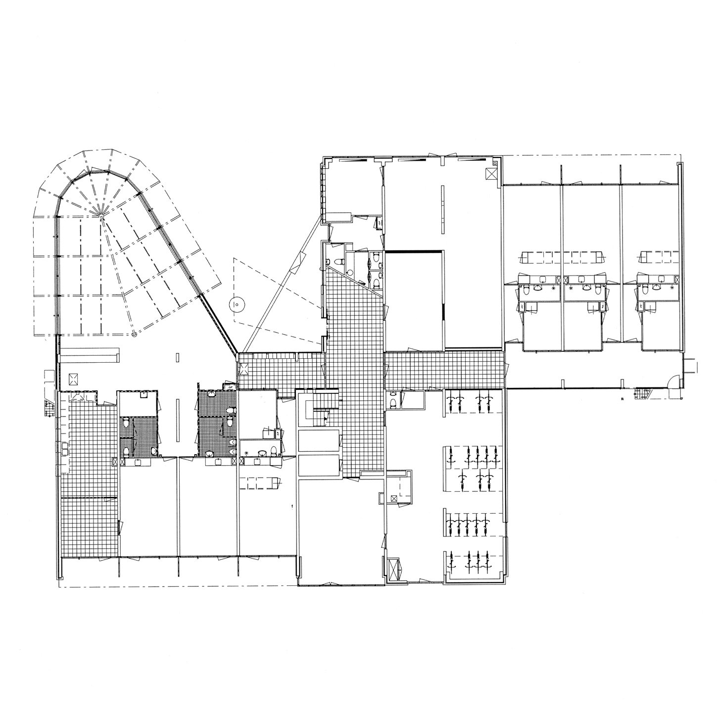
De Lijzijde was oorspronkelijk een jongerenflat. Deze is omgebouwd tot NOVO-woningen en seniorenappartementen. Daarnaast is ter plaatse van de entree en een nieuwe recreatiezaal gerealiseerd en zijn de bestaande open galerijen afgesloten.

← Terug naar projecten
Categorie
Opdrachtgever
Nijestee
Programma
NOVO Woningen, Recreatiezaal
Omvang
m²
Fotograaf
Jim Ernst Fotografie
Thema's
Renovatie, Senioren